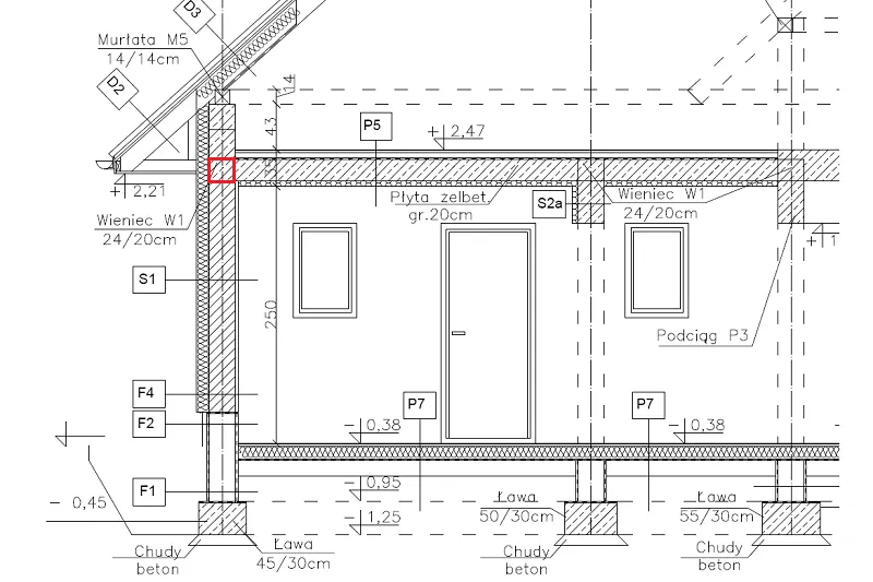
Połączenie wieńca ze stropem jest kluczowym elementem budowy, który zapewnia stabilność i bezpieczeństwo konstrukcji. Właściwe wykonanie tego połączenia wymaga precyzyjnego zbrojenia, odpowiedniego betonowania oraz zastosowania właściwych metod łączenia. Każdy z tych kroków ma swoje znaczenie i wpływa na trwałość całej budowli.
W artykule przedstawimy najważniejsze etapy procesu łączenia wieńca ze stropem, w tym wybór materiałów, techniki zbrojenia oraz zasady betonowania. Zrozumienie tych kroków pomoże uniknąć typowych błędów i zapewni, że konstrukcja będzie solidna i bezpieczna przez wiele lat.
Kluczowe informacje:- Zbrojenie wieńca powinno być wykonane zgodnie z normami budowlanymi, aby zapewnić odpowiednią wytrzymałość.
- Betonowanie wieńca wymaga użycia mieszanki klasy C16/20 lub wyższej dla uzyskania trwałości.
- Płyty stropowe muszą być odpowiednio umieszczone na zbrojeniu wieńca, co wpływa na stabilność konstrukcji.
- Deskowanie stropu jest kluczowe dla równomiernego rozłożenia obciążeń na wieńce.
- Po betonowaniu, odpowiednie schnięcie i utwardzanie betonu są niezbędne dla osiągnięcia pełnej stabilności.
Jak prawidłowo zbroić wieniec dla stabilności konstrukcji
Zbrojenie wieńca jest kluczowym elementem, który wpływa na stabilność i bezpieczeństwo konstrukcji. Odpowiednie zbrojenie zapewnia, że wieńce są w stanie wytrzymać obciążenia i działanie sił zewnętrznych. Właściwe wykonanie tego procesu jest niezbędne, aby uniknąć problemów strukturalnych w przyszłości. Zbrojenie powinno być zgodne z normami budowlanymi oraz zaleceniami projektanta, co gwarantuje jego trwałość.
Wśród materiałów używanych do zbrojenia wieńców najczęściej spotyka się stal zbrojeniową oraz różnego rodzaju siatki zbrojeniowe. Stal zbrojeniowa, znana również jako pręty zbrojeniowe, jest dostępna w różnych średnicach i klasach, co pozwala na dostosowanie jej do specyficznych potrzeb konstrukcyjnych. Siatki zbrojeniowe, z kolei, są używane tam, gdzie wymagane jest równomierne rozłożenie obciążeń. Warto zainwestować w materiały wysokiej jakości, aby zapewnić maksymalną wytrzymałość konstrukcji.Wybór odpowiednich materiałów do zbrojenia wieńca
Wybór odpowiednich materiałów do zbrojenia wieńca jest kluczowy dla sukcesu całego projektu budowlanego. Najczęściej stosowane materiały to stal zbrojeniowa oraz różne siatki zbrojeniowe, które różnią się właściwościami i zastosowaniem. Stal zbrojeniowa jest dostępna w różnych klasach, co pozwala na dobranie odpowiedniego typu do specyficznych wymagań konstrukcyjnych.
| Typ materiału | Właściwości | Zastosowanie |
| Stal zbrojeniowa | Wysoka wytrzymałość na rozciąganie | Wieniec, słupy, fundamenty |
| Siatka zbrojeniowa | Równomierne rozłożenie obciążeń | Płyty stropowe, ściany |
| Pręty kompozytowe | Odporność na korozję | Specjalistyczne konstrukcje |
Techniki wiązania prętów zbrojeniowych w wieńcu
Wiązanie prętów zbrojeniowych jest kluczowym krokiem w procesie zbrojenia wieńca. Istnieje kilka technik, które można zastosować, aby zapewnić odpowiednią stabilność. Najpopularniejsze metody to wiązanie na krzyż oraz użycie strzemion, które utrzymują pręty w odpowiedniej pozycji. Ważne jest, aby przestrzegać zaleceń dotyczących odległości między prętami, co wpływa na ich efektywność.
- Wiązanie na krzyż - zapewnia dodatkową stabilność i sztywność konstrukcji.
- Użycie strzemion - utrzymuje pręty w odpowiedniej odległości i pozycji.
- Kontrola jakości - regularne sprawdzanie poprawności wiązania jest kluczowe dla bezpieczeństwa.
Techniki wiązania prętów zbrojeniowych w wieńcu
Wiązanie prętów zbrojeniowych w wieńcu jest kluczowym krokiem w procesie zbrojenia, który zapewnia stabilność i integralność konstrukcji. Istnieje kilka technik, które można zastosować, aby skutecznie połączyć pręty, co jest niezbędne dla ich prawidłowego funkcjonowania. Najczęściej stosowane metody to wiązanie na krzyż oraz użycie strzemion, które pomagają utrzymać pręty w odpowiedniej pozycji. Ważne jest, aby stosować odpowiednie odstępy między prętami, co pozwala na ich efektywne działanie i minimalizuje ryzyko uszkodzeń.
Wiązanie na krzyż polega na skrzyżowaniu prętów w miejscach ich styku, co zwiększa sztywność konstrukcji. Z kolei strzemiona, które są zakrzywionymi prętami, można stosować do utrzymania prętów w odpowiedniej odległości od siebie. Powinny być one umieszczane w regularnych odstępach, aby zapewnić równomierne rozłożenie obciążeń. Warto również pamiętać o używaniu odpowiednich materiałów wiążących, które zapewnią trwałość połączeń.
- Wiązanie na krzyż - zwiększa sztywność i stabilność konstrukcji.
- Użycie strzemion - pomaga utrzymać pręty w odpowiedniej pozycji i odległości.
- Regularne sprawdzanie odstępów - kluczowe dla efektywności i bezpieczeństwa konstrukcji.
Jak betonować wieniec dla trwałości i bezpieczeństwa
Betonowanie wieńca to kluczowy proces, który wpływa na trwałość i bezpieczeństwo całej konstrukcji. Przygotowanie odpowiedniej mieszanki betonowej oraz właściwe wylanie betonu są niezbędne do osiągnięcia pożądanych właściwości. Beton klasy C16/20 lub wyższej jest często stosowany, aby zapewnić odpowiednią wytrzymałość. Warto pamiętać, że mieszanka betonowa powinna być dokładnie wymieszana i odpowiednio wypełniać przestrzeń między prętami zbrojeniowymi.
Proces betonowania zaczyna się od przygotowania formy, w której będzie wylewany beton. Należy upewnić się, że forma jest stabilna i dobrze przymocowana, aby uniknąć jej przesunięcia podczas wylewania. Następnie beton wylewa się równomiernie, a jego powierzchnię należy wygładzić, aby uzyskać gładką i równą powierzchnię. Po wylaniu betonu, ważne jest, aby odpowiednio go pielęgnować, aby zapewnić właściwe schnięcie i utwardzenie, co jest kluczowe dla trwałości wieńca.
Przygotowanie mieszanki betonowej do wienca
Przygotowanie odpowiedniej mieszanki betonowej jest kluczowe dla trwałości wieńca. Mieszanka betonowa składa się z kilku podstawowych składników, które wpływają na jej właściwości. Najważniejsze z nich to cement, kruszywo (piasek i żwir) oraz woda. Cement jest odpowiedzialny za wiązanie składników, kruszywo zapewnia strukturę, a woda aktywuje proces hydratacji cementu. Dodatkowo można stosować różne dodatek do betonu, takie jak plastyfikatory, które poprawiają jego właściwości i ułatwiają aplikację.
- Cement portlandzki - najczęściej stosowany rodzaj cementu w budownictwie.
- Piasek - powinien być czysty i wolny od zanieczyszczeń.
- Żwir - zapewnia odpowiednią nośność mieszanki.
| Typ mieszanki | Zastosowanie |
| Mieszanka C16/20 | Podstawowe konstrukcje, takie jak fundamenty i wieńce. |
| Mieszanka C25/30 | Budynki mieszkalne i komercyjne, gdzie wymagana jest wyższa wytrzymałość. |
| Mieszanka C30/37 | Struktury o dużych obciążeniach, takie jak mosty i wieżowce. |
Proces betonowania wieńca krok po kroku
Betonowanie wieńca to proces, który wymaga staranności i precyzji. Pierwszym krokiem jest przygotowanie formy, która musi być stabilna i odpowiednio zabezpieczona. Następnie mieszankę betonową wylewa się do formy, zaczynając od narożników, aby zminimalizować powstawanie pęcherzyków powietrza. Kolejnym krokiem jest wygładzenie powierzchni betonu, co można zrobić za pomocą łaty lub widelca. Po wylaniu betonu, należy go odpowiednio pielęgnować, aby zapewnić jego utwardzenie i schnięcie. W tym celu warto stosować folie ochronne lub specjalne środki do pielęgnacji betonu, które zapobiegają zbyt szybkiemu parowaniu wody.
Czytaj więcej: Jak ocieplić strop betonowy od spodu – skuteczne metody i materiały

Jak prawidłowo połączyć wieniec ze stropem dla solidności
Połączenie wieńca ze stropem jest kluczowym elementem konstrukcji budowlanej, który zapewnia jej stabilność i bezpieczeństwo. Istnieje kilka metod, które można zastosować, aby efektywnie połączyć te dwa elementy. Właściwe połączenie nie tylko wzmacnia całą strukturę, ale także zapobiega potencjalnym uszkodzeniom w przyszłości. Wybór odpowiedniej metody łączenia zależy od specyfiki budynku oraz rodzaju użytych materiałów.
Najczęściej stosowane metody obejmują użycie kotew, brakietów oraz zbrojenia w postaci prętów. Kotwy są montowane w stropie, a następnie łączone z wieńcem, co zapewnia solidne połączenie. Brakiety, z kolei, mogą być używane do wsparcia wieńca w miejscach, gdzie obciążenia są największe. W przypadku zbrojenia, pionowe pręty z wieńca powinny być dobrze połączone z zbrojeniem stropu, co zapewnia ciągłość konstrukcji i zwiększa jej nośność.
Metody łączenia wieńca z płytami stropowymi
W przypadku łączenia wieńca z płytami stropowymi, istnieje kilka sprawdzonych metod, które można zastosować. Użycie kotew stalowych jest jedną z najpopularniejszych opcji, ponieważ zapewnia mocne i trwałe połączenie. Kotwy te są wbijane lub wkręcane w strop i łączone z wieńcem, co pozwala na przeniesienie obciążeń. Inną metodą są brakiety, które wspierają wieńce i zapewniają dodatkową stabilność. Warto również rozważyć zastosowanie zbrojenia w postaci prętów, które łączą wieńce z płytami stropowymi, co wzmacnia całą konstrukcję.
- Kotwy stalowe - mocne połączenie, idealne dla dużych obciążeń.
- Brakiety - wsparcie dla wieńców w newralgicznych miejscach.
- Zbrojenie prętowe - zapewnia ciągłość i nośność konstrukcji.
Zastosowanie deskowania w połączeniu wieńca i stropu
Deskowanie odgrywa kluczową rolę w procesie łączenia wieńca ze stropem, zapewniając odpowiednie wsparcie dla betonu w czasie jego wylewania i utwardzania. Poprawnie wykonane deskowanie pozwala na równomierne rozłożenie obciążeń oraz zapobiega deformacjom, które mogą wystąpić podczas schnięcia betonu. Deskowanie powinno być solidne i stabilne, aby wytrzymać ciężar wylewanego betonu oraz wszelkie dodatkowe obciążenia, które mogą wystąpić w trakcie budowy.
W praktyce, deskowanie może być wykonane z różnych materiałów, takich jak sklejka, płyty OSB czy stal. Wybór materiału zależy od specyfiki projektu oraz wymagań konstrukcyjnych. Dobrze zaprojektowane deskowanie nie tylko wspiera wieńce, ale także ułatwia późniejsze prace budowlane, takie jak montaż stropów. Ważne jest, aby deskowanie było usunięte dopiero po pełnym utwardzeniu betonu, co zapewnia maksymalną stabilność konstrukcji.
Innowacyjne techniki deskowania dla lepszej efektywności budowy
W dzisiejszym budownictwie, innowacyjne techniki deskowania stają się kluczowym elementem, który może znacząco poprawić efektywność i jakość połączeń wieńca ze stropem. Systemy deskowania modułowego zyskują na popularności, ponieważ umożliwiają szybsze i łatwiejsze montowanie oraz demontowanie form, co przyspiesza cały proces budowy. Dzięki zastosowaniu takich systemów, można również zredukować ilość odpadów materiałowych, co przekłada się na bardziej zrównoważony rozwój w branży budowlanej.Oprócz tego, nowoczesne materiały kompozytowe do deskowania, które są lżejsze i bardziej wytrzymałe niż tradycyjne drewno czy stal, stają się coraz bardziej dostępne. Te innowacyjne rozwiązania nie tylko poprawiają bezpieczeństwo pracy, ale również zwiększają dokładność i jakość wykonania połączeń. Warto również rozważyć zastosowanie technologii cyfrowych, takich jak modelowanie informacji o budynku (BIM), które pozwalają na lepsze planowanie i zarządzanie procesem deskowania, co w efekcie prowadzi do wyższej jakości konstrukcji oraz oszczędności czasu i kosztów.
